Nos chalets 2 à 4 personnes
Jusqu'à 4 personnes par chalet
Le camping dispose de 2 chalets placés autour du plan d'eau. Ces hébergements construis sur pilotis, à l'aspect chaleureux par leur fabrication en bois et leur terrasse couverte vous donneront tout le confort et les équipements dont vous avez besoin le temps de votre séjour. Les grandes baies vitrées coulissantes du salon donnent directement sur la terrasse et vous permettront d'agrandir l'espace de vie par beau temps. Avec la climatisation réversible vous resterez au frais en été et au chaud en basse saison. La plage du plan d'eau n'est qu'à 200m.
Ces logements confortables et tout équipés disposent d'une chambre avec son lit double, une pièce de vie avec la cuisine équipée, le salon (canapé-lit convertible et TV) et la table, une pièce pour la salle d'eau et des WC séparés. La grande terrasse meublée et abritée vous permettra de profiter de la vue (même par mauvais temps) et du soleil.
Pour favoriser votre détente jusqu'au bout de vos vacances le ménage est inclus dans le tarif de nos locations.
Location 2 nuits minimum et à la semaine en juillet et août
Ouvert même en hiver
Arrivées à partir de 16h et départs autour de 10h
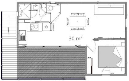
Plan d'un chalet 1 chambre
A votre disposition
Une pièce de vie avec un canapé-lit convertible (140x190), TV, une clim réversible, un coin repas avec une table (4 personnes) et 4 chaises, un coin cuisine avec un réfrigérateur, un congélateur, une plaque de cuisson, une hotte, une bouilloire, un micro-onde, une cafetière (à filtres), un évier avec eau chaude, la vaisselle et les ustensiles de cuisine, des placards pour ranger les denrées alimentaires, de grandes baies vitrées coulissantes séparant la cuisine de la terrasse.
Une chambre avec un lit double (160x200), les couettes et les oreillers pour 4 personnes (inclus), une armoire.
Une salle d'eau avec douche, lavabo avec eau chaude et étagères de rangement. WC séparés
Une terrasse couverte avec un ensemble table et quatre chaises.
Pour plus d'informations jetez un coup d'œil à l'inventaire :
Prêts
Sur simple demande: jeux de société et de plein air, lit bébé et chaise haute (à demander lors de la réservation), grille pain.
Avec supplément (à demander lors de la réservation): linge de lit (lot taie(s), draps plat ou housse de couette et draps housse à 12€/lit double), location serviette (3€), barbecue électrique, vélo électrique, pédalo.
Information : les barbecues électriques ou à gaz sont autorisés en bas des terrasses.









